Le Villa est située dans la lumière chaleureuse de la Costa Blanca, entourée d’une végétation luxuriante et conçue avec une vision claire : intégrer harmonieusement l’intérieur et l’extérieur.
Cette propriété, actuellement en construction, est idéale pour ceux qui recherchent le confort de plain-pied ainsi qu’un cadre de vie ouvert, lumineux et fonctionnel dans lequel chaque espace est connecté à l’extérieur.
Architecture & Layout
L’architecture repose sur un concept clair : minimiser les barrières entre l’intérieur et l’extérieur afin de créer une expérience de vie optimale.
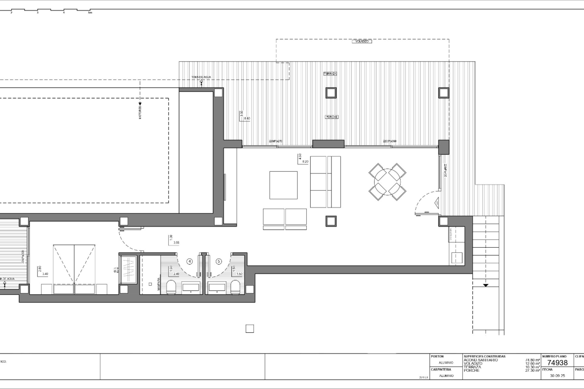
Main Floor – Living Without Stairs
La vie quotidienne se déroule entièrement au niveau principal — une solution parfaite pour ceux qui souhaitent vivre sur un seul niveau.
Spacieux espace de vie ouvert comprenant salon, salle à manger et cuisine
Grandes baies vitrées avec accès direct à la terrasse
Transition naturelle vers l’extérieur pour profiter pleinement du climat méditerranéen
L’espace nuit comprend :
Trois chambres doubles spacieuses
Suite parentale avec accès direct à la terrasse
Salle de bains privative pour plus de confort et d’intimité
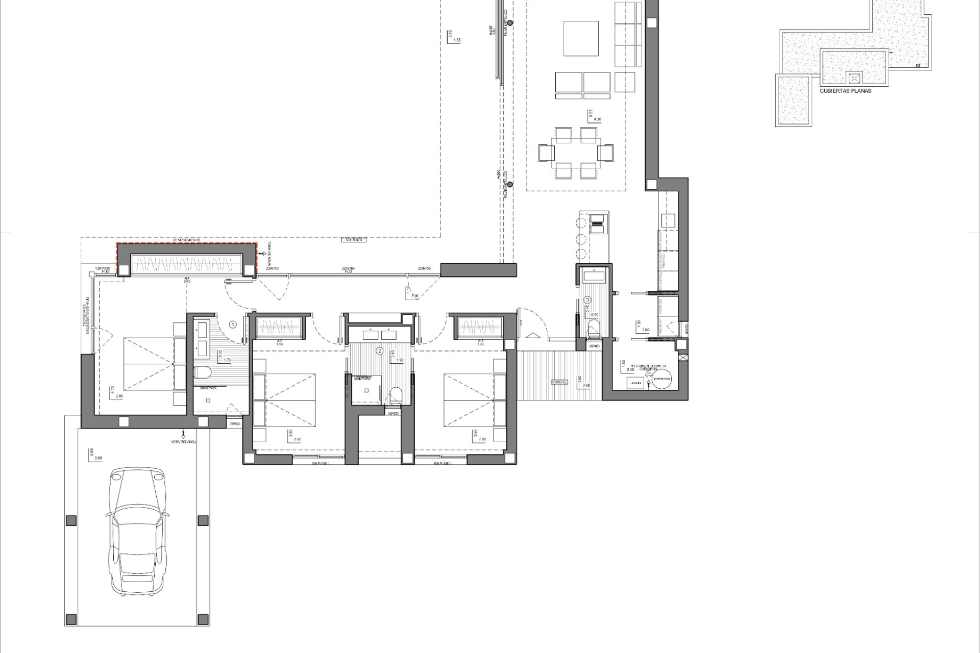
Lower Level – Flexible Use
Au niveau inférieur, un grand espace ouvert peut être aménagé entièrement selon vos besoins :
Espace fitness ou détente
Appartement indépendant pour invités
Bureau ou salle de loisirs
Espace de vie multifonctionnel
Comfort & Sustainability
Villa Nara sera équipée de technologies avancées et écoénergétiques :
Climatisation par aérothermie
Système de ventilation avec récupération de chaleur
Chauffage au sol
Système d’alarme
Chaque détail — du choix des matériaux à l’orientation — a été soigneusement étudié afin de garantir un confort maximal, la durabilité et l’efficacité énergétique.
Outdoor Living at Its Best
Avec environ 300 jours de soleil par an, la spacieuse terrasse et la piscine privée vous invitent à profiter chaque jour du style de vie méditerranéen en plein air. Ici, la détente occupe une place centrale, avec une connexion harmonieuse entre l’architecture et la nature.
A Lifestyle Choice
Vivre à Villa Nara signifie choisir :
Une vie pratique et confortable
Une harmonie totale avec l’environnement
Une utilisation optimale de la lumière et de l’espace
Profiter immédiatement de la vie au bord de la mer Méditerranée
Le Villa n’est pas seulement une maison, mais un art de vivre — conçu pour profiter du meilleur de la vie méditerranéenne chaque jour.