The Villa se encuentra en la cálida luz mediterránea de la Costa Blanca, rodeada de exuberante vegetación y diseñada con una visión clara: integrar a la perfección el interior y el exterior.
Esta vivienda, actualmente en construcción, es ideal para quienes buscan confort en una sola planta y un entorno de vida abierto, luminoso y funcional en el que cada espacio está conectado con el exterior.
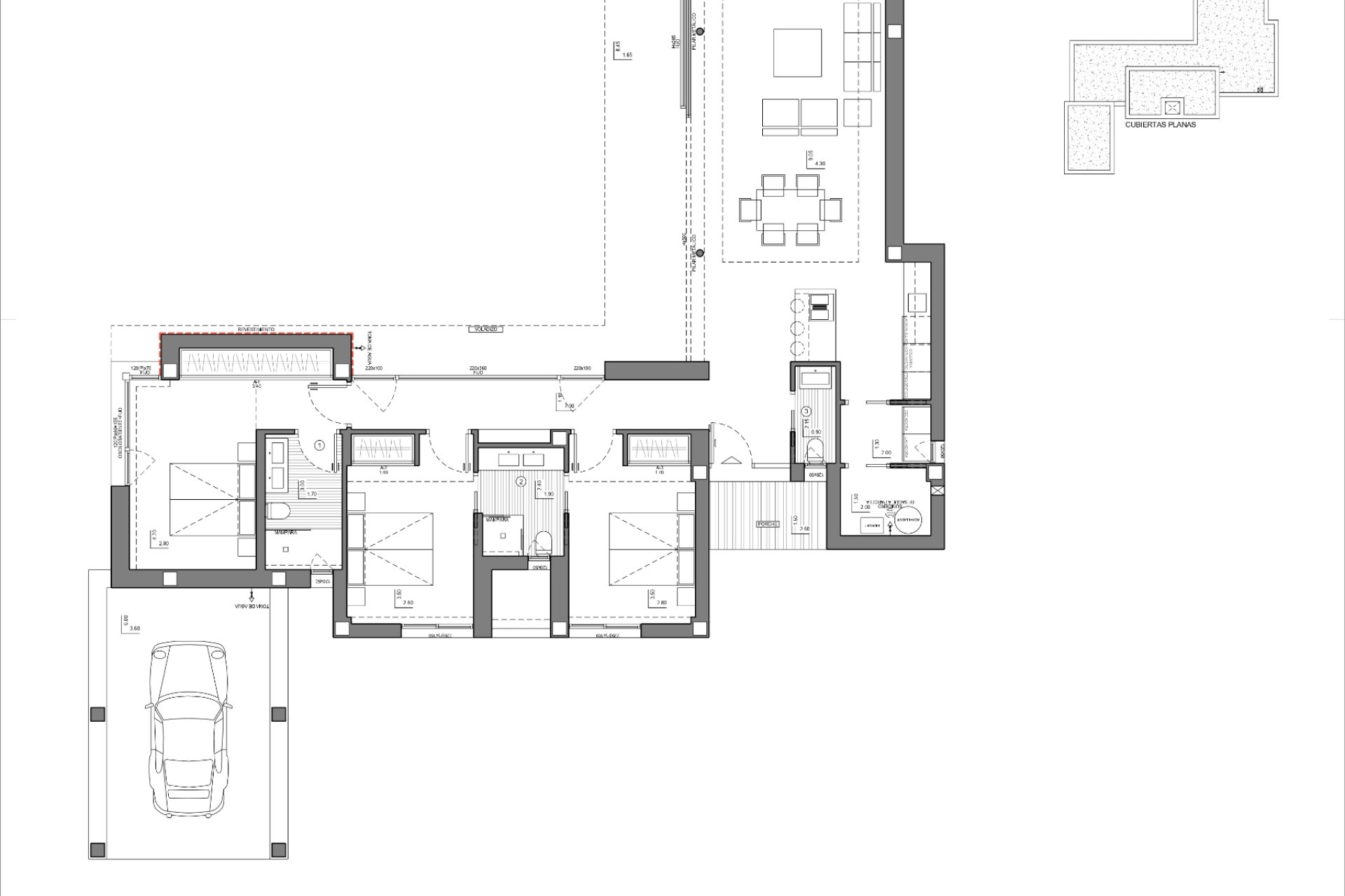
Arquitectura y distribuciónLa arquitectura parte de un concepto claro: minimizar las barreras entre interior y exterior para crear una experiencia de vida óptima.
Planta principal – Vivir sin escaleras
La vida diaria se desarrolla íntegramente en la planta principal, una solución perfecta para quienes desean una vivienda en un solo nivel.
Amplio espacio diáfano con salón, comedor y cocinaGrandes ventanales con acceso directo a la terrazaTransición natural al exterior para disfrutar plenamente del clima mediterráneoLa zona de descanso incluye:
Tres amplios dormitorios doblesSuite principal con acceso directo a la terrazaBaño privado para mayor confort y privacidadPlanta inferior – Uso flexible
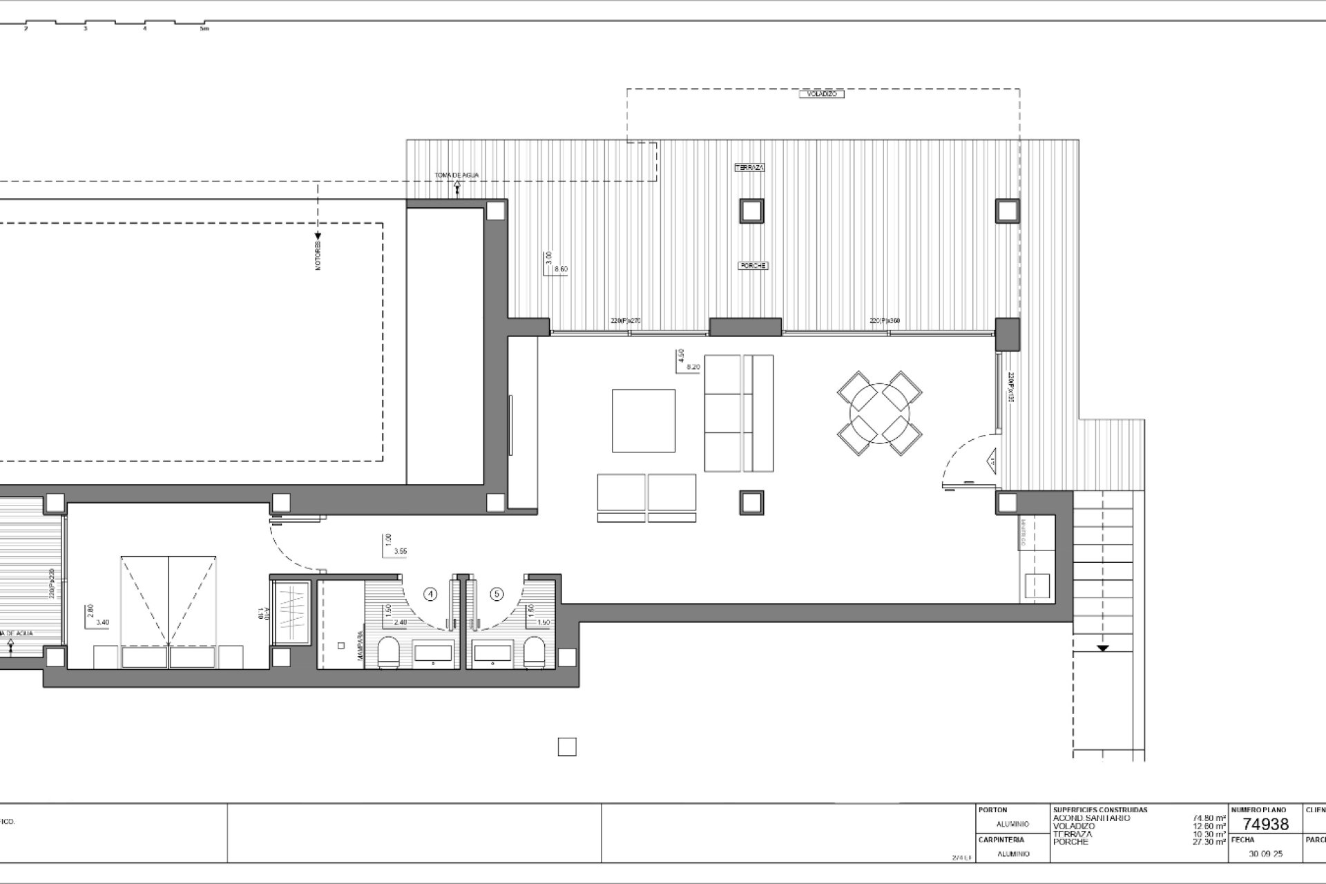
En el nivel inferior hay un gran espacio abierto que puede adaptarse a diferentes usos:
Zona de fitness o relaxApartamento independienteEspacio de trabajo o aficionesÁrea multifuncionalConfort y sostenibilidadEste villa estará equipada con tecnologías avanzadas y eficientes:
Climatización mediante aerotermiaSistema de ventilación con recuperación de calorSuelo radianteSistema de alarmaCada detalle —desde los materiales hasta la orientación— ha sido cuidadosamente estudiado para garantizar máximo confort, sostenibilidad y eficiencia energética.
Vida exterior en su máxima expresiónCon aproximadamente 300 días de sol al año, la amplia terraza y la piscina privada invitan a disfrutar cada día del estilo de vida mediterráneo.
Una elección de estilo de vidaVivir en Villa Nara significa elegir:
Vida práctica y confortableArmonía total con el entornoMáximo aprovechamiento de la luz y el espacioDisfrutar desde el primer momento del mar Mediterráneo