Daya Nueva. Alicante Townhouse. New Build

Ref.  NB-95460

317.000€

Overview

Daya Nueva. Alicante Townhouse. New Build

Inland
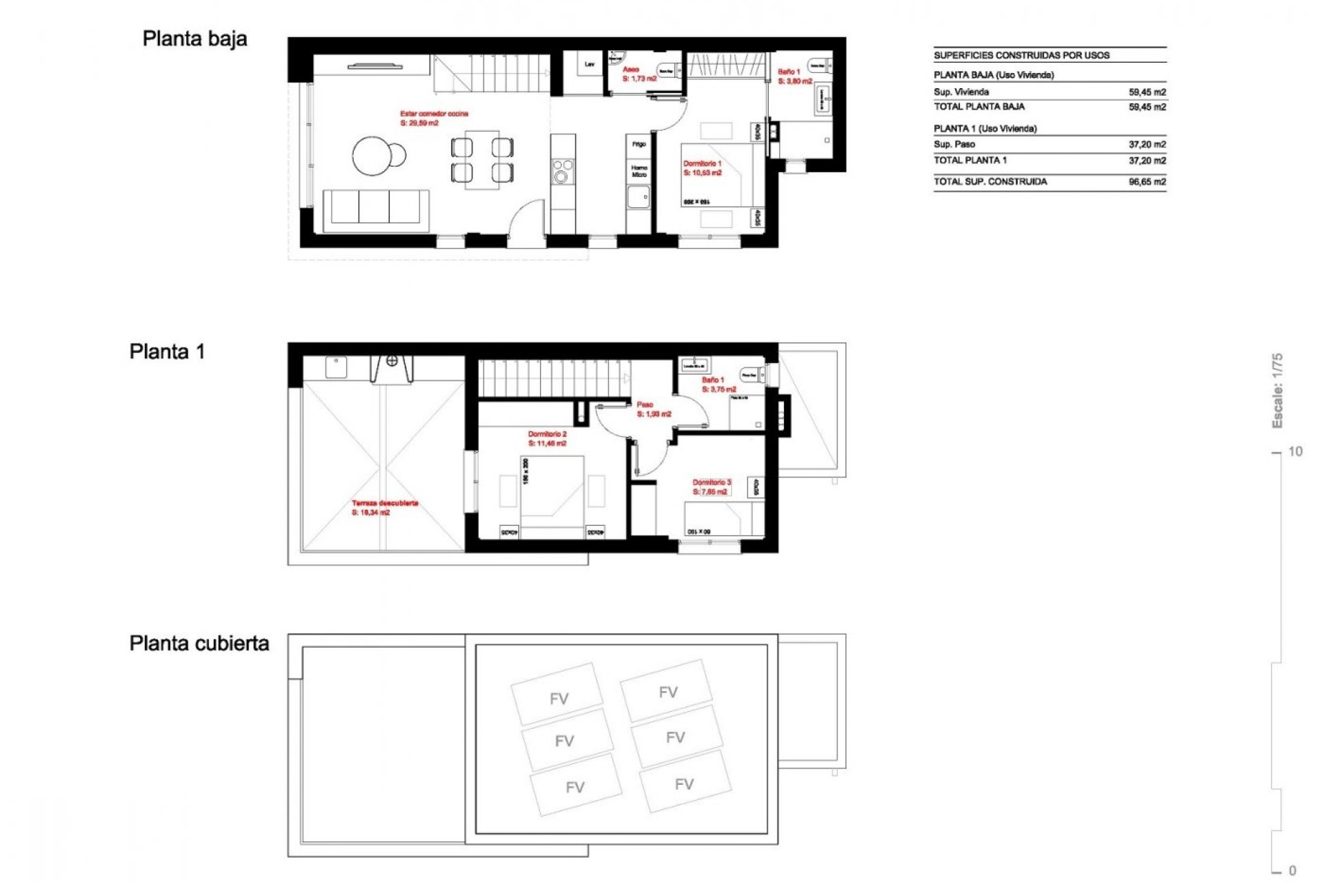
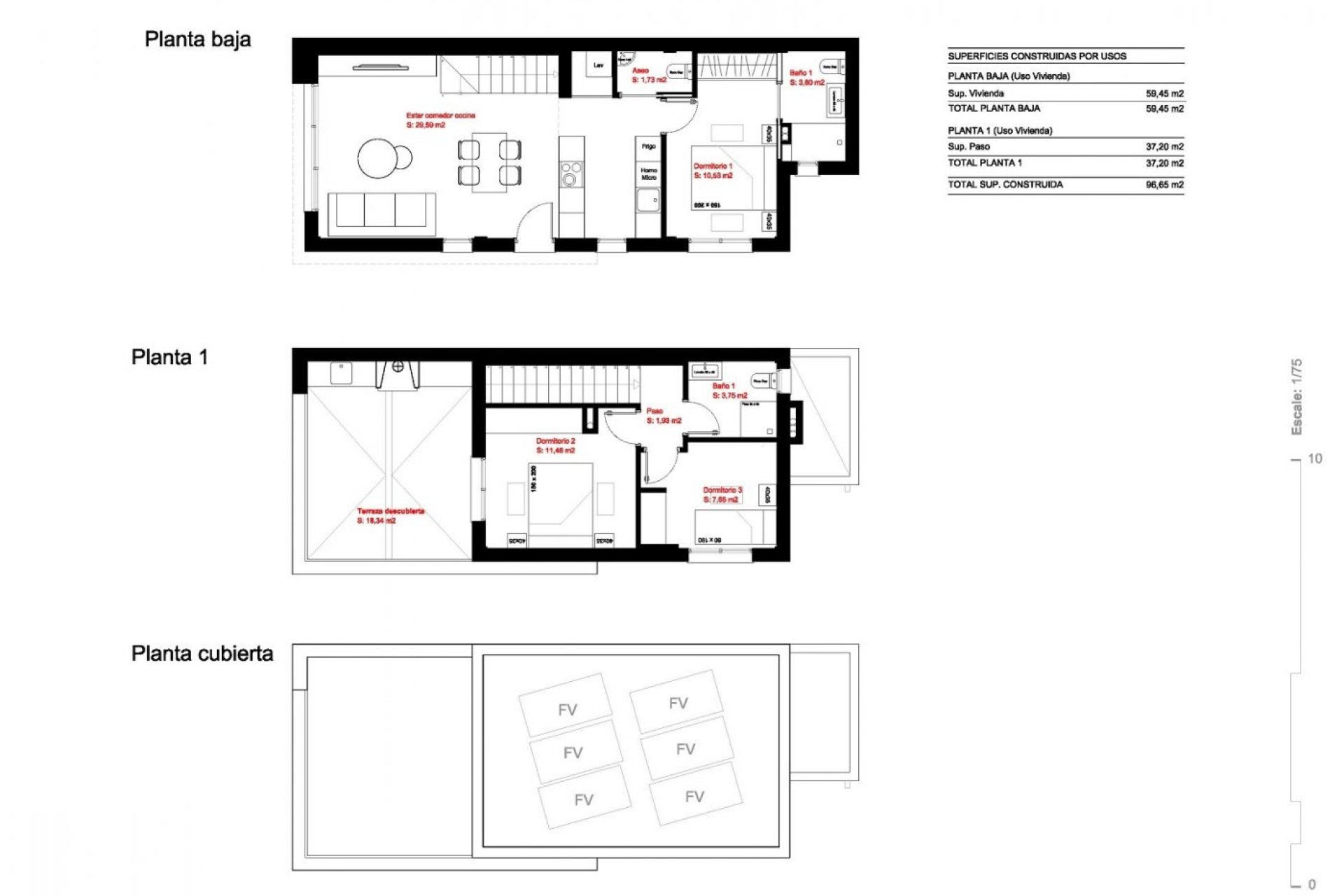
  • Plot

    Plot.

    160m2
  • Bed

    Bed.

    3
  • Bath

    Bath.

    2
  • Pool

    Pool.

    Yes

Description

NEW SEMI-DETACHED VILLAS IN DAYA NUEVA

Location

Make an enquiry

Data Controller: Inmoarea Partners, SL, Purpose of Processing: Management and control of the services offered through the Real Estate Services website, Sending information via newsletter and others, Legal Basis: By consent, Recipients: Data will not be shared, except for accounting purposes, Rights of Interested Parties: Access, rectify, and delete data, request its portability, object to processing, and request its limitation, Source of Data: The Data Subject, Additional Information: You can consult additional and detailed information on data protection Here.
WhatsApp Contact
Search