1.175.000€
Metros.
245m2Parcela.
785m2Hab..
4Baño.
3Piscina.
SíEncontramos esta villa moderna en construcción sobre una parcela de 785m2, a tan solo 3km del centro de Calpe y de sus playas.
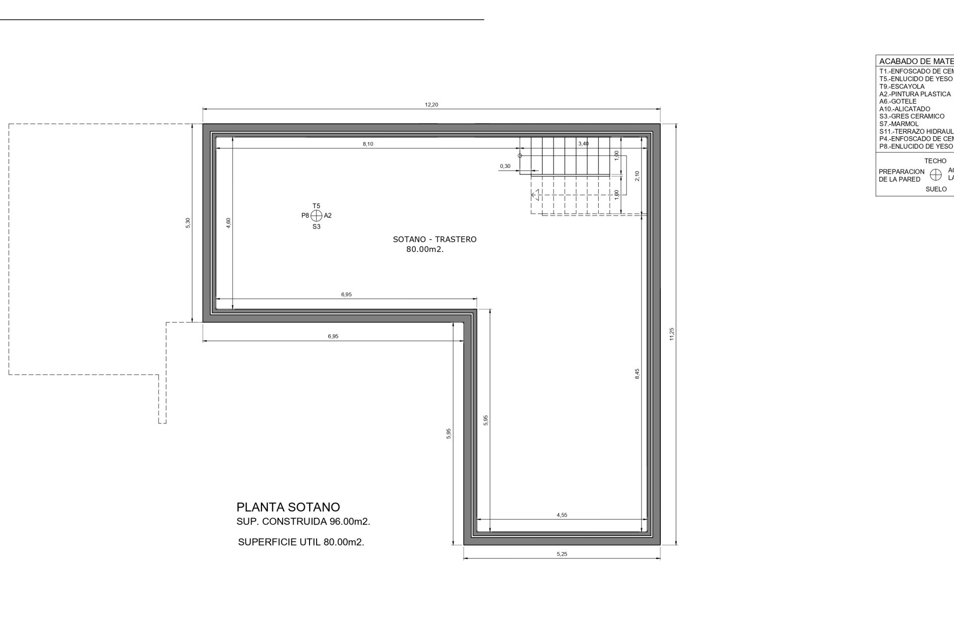
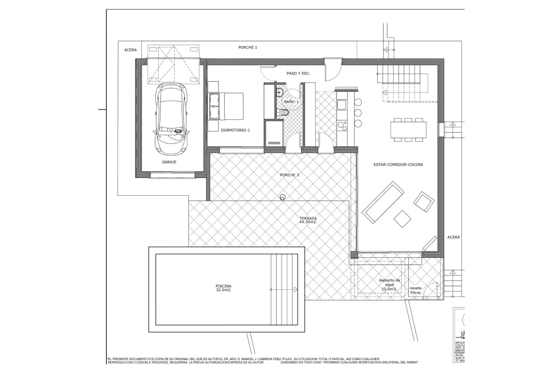
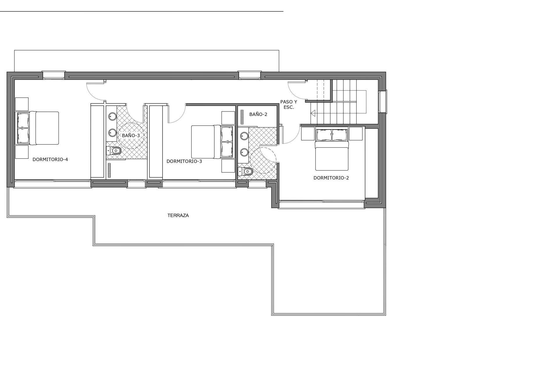
DISTRIBUCIÓN:
La vivienda consta de 3 plantas con la siguiente distribución:
En la planta baja se encuentra el amplio salón-comedor con cocina abierta y acceso directo a la terraza con la piscina privada de 4x8 m, un dormitorio y un baño independiente. Además, en esta planta encontramos un garaje de 27 m2, jardín de fácil mantenimiento, terraza cubierta y abierta. Subiendo las escaleras vamos a la planta alta que da acceso a 3 dormitorios más, uno con baño en suite y un baño completo. Además todas las habitaciones tienen acceso a un terraza descubierta donde se puede disfrutar las preciosas vistas que ofrece esta villa. Finalmente, la planta sótano, donde encontramos un gran espacio que lo puede convertir en lo que usted quiera como una sala de cines, zona de gimnasio…Esta villa será construida con materiales de alta calidad.
Si desea más información o una visita, no dude en contactarnos!