Orihuela Costa. Alicante Apartamento. Obra nueva

Ref.  NB-20397

469.000€

Resumen

Orihuela Costa. Alicante Apartamento. Obra nueva

Playa
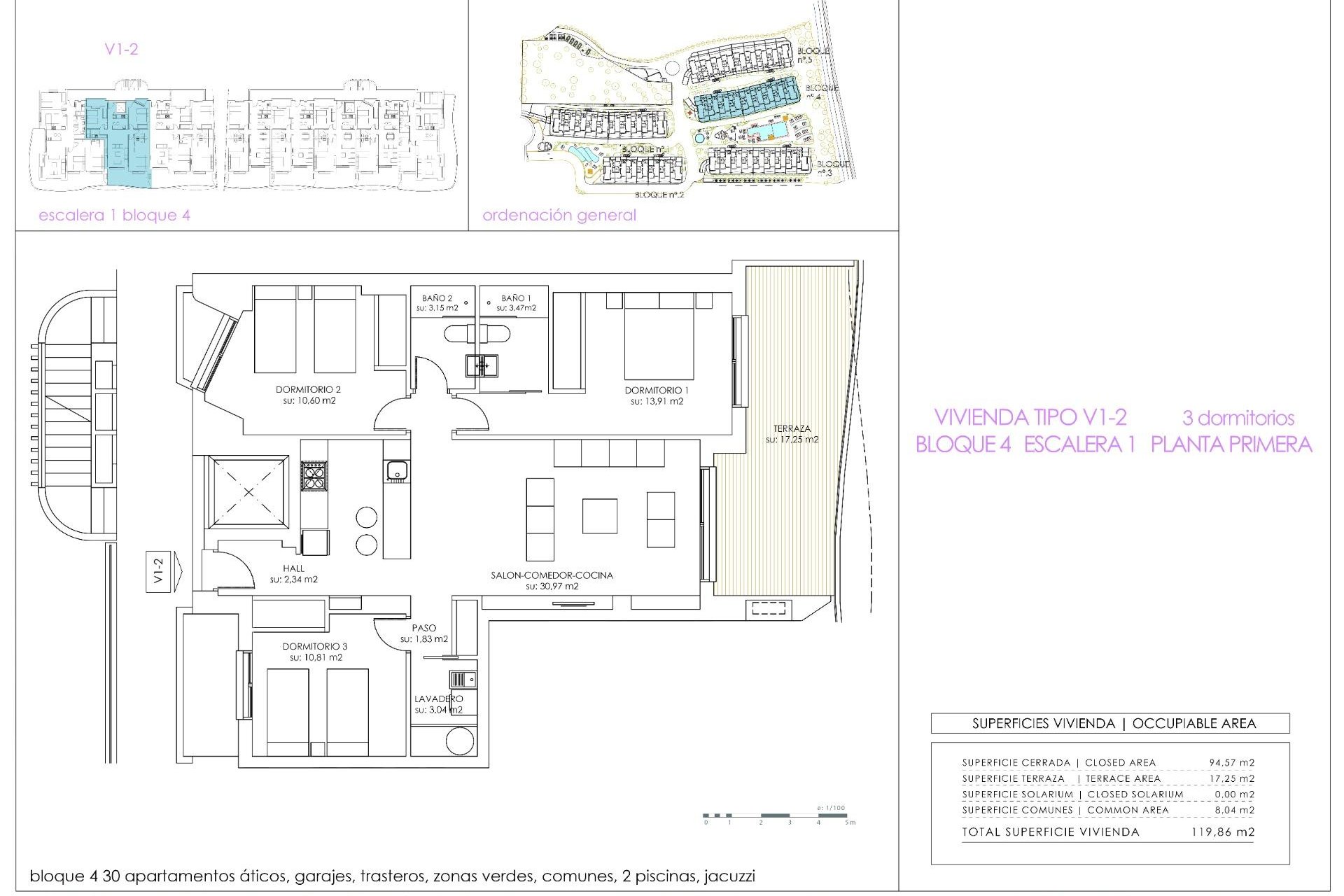
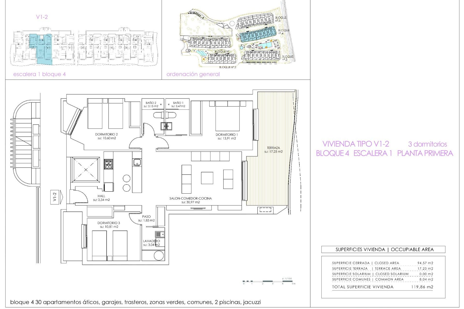
  • Hab.

    Hab..

    3
  • Baño

    Baño.

    2
  • Piscina

    Piscina.

Descripción

RESIDENCIAL DE OBRA NUEVA EN PLAYA FLAMENCA !!!

Localización

Hacer una consulta

Responsable del tratamiento: Inmoarea Partners, SL, Finalidad del tratamiento: Gestión y control de los servicios ofrecidos a través de la página Web de Servicios inmobiliarios, Envío de información a traves de newsletter y otros, Legitimación: Por consentimiento, Destinatarios: No se cederan los datos, salvo para elaborar contabilidad, Derechos de las personas interesadas: Acceder, rectificar y suprimir los datos, solicitar la portabilidad de los mismos, oponerse altratamiento y solicitar la limitación de éste, Procedencia de los datos: El Propio interesado, Información Adicional: Puede consultarse la información adicional y detallada sobre protección de datos Aquí.
WhatsApp Contacto
Buscar