Villa de nueva construcción estilo Ibiza con características de lujo en Jávea
Exclusivo diseño mediterráneo cerca de la playa de El Arenal
Esta impresionante villa de nueva construcción estilo Ibiza en Jávea se encuentra a solo 3 km de la famosa playa de El Arenal, una de las zonas más animadas y atractivas de la Costa Blanca Norte. Situada en una zona residencial tranquila y bien comunicada, la propiedad ofrece una combinación excepcional de elegancia, comodidad y arquitectura mediterránea moderna. Jávea es conocida por sus aguas cristalinas, sus pintorescas calas, sus parques naturales, sus puertos deportivos y sus excelentes opciones gastronómicas, lo que la convierte en un destino muy deseable tanto para vivir como para invertir.
Elegante distribución interior en dos niveles
La villa ha sido cuidadosamente diseñada para maximizar el confort y el estilo. En la planta baja, un amplio salón-comedor conecta a la perfección con una cocina totalmente equipada, creando un espacio diáfano, luminoso y acogedor. Esta planta también incluye un ascensor para mayor comodidad, un aseo de invitados y un pasillo central que conecta todas las zonas.
Hay dos dormitorios dobles con baños en suite, además de un impresionante dormitorio principal que cuenta con una amplia distribución, un baño en suite y un vestidor integrado.
Vida al aire libre diseñada para el estilo de vida mediterráneo
Los espacios exteriores han sido creados para disfrutar del cálido clima de Jávea durante todo el año. La propiedad incluye dos elegantes pérgolas, una en la entrada y otra que se extiende desde la sala de estar y la cocina hacia la terraza abierta que rodea la piscina privada de 38 m2.
Junto a la cocina, una terraza adicional con zona de barbacoa ofrece el escenario perfecto para cenas al aire libre y reuniones sociales.
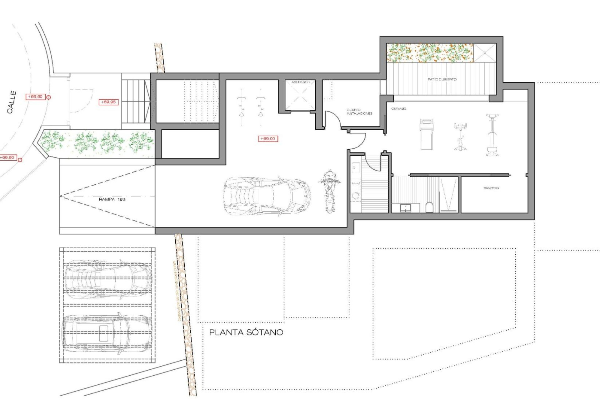
Sótano de primera calidad con comodidades excepcionales
El sótano combina funcionalidad y lujo, con un garaje abierto, ascensor, lavadero, gimnasio, patio cubierto, cuarto de baño y una amplia zona de almacenamiento. Esta planta ha sido diseñada para adaptarse a las necesidades de la vida moderna y ofrecer la máxima comodidad.
Ubicación privilegiada en Jávea
Jávea ofrece una combinación única de belleza natural, opciones de ocio y servicios de alta calidad.
Distancias clave desde la villa:
Playa del Arenal 3 km
Puerto y marina de Jávea a 7 km
Club de golf de Jávea a 3 km
Aeropuerto de Alicante a 100 km
Aeropuerto de Valencia a 125 km
Su hogar mediterráneo le espera
Tanto si busca una residencia permanente, una casa de vacaciones de lujo o una oportunidad de inversión de primera clase, esta villa ofrece una calidad excepcional y una ubicación inmejorable. Póngase en contacto con nosotros hoy mismo para concertar una visita y descubrir su nuevo hogar en Jávea.
1052